Signed in as:
filler@godaddy.com
Signed in as:
filler@godaddy.com
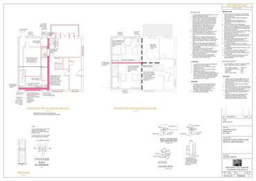
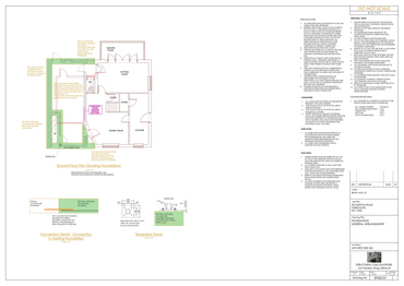
This project involved a comprehensive internal reconfiguration, garage conversion, and structural alteration to a traditional residential property at 425 Skipton Road, North Yorkshire. The aim was to modernise the internal layout, improve functionality, and unlock underused space — while ensuring full compliance with planning policy and Building Regulations.
The scheme transformed the ground floor by repurposing the existing garage and reorganising the internal arrangement to create a more practical, flexible, and modern living environment, suitable for long-term family use.
The entire project was delivered 100% online by MyHomePlans, using detailed planning drawings, building regulations packages, and coordinated structural information — eliminating the need for site visits while still providing builder-ready clarity.
Project Type: Internal Reconfiguration & Garage Conversion
Property Type: Residential Dwelling
Service: Full Online Architectural Design
Delivery: Nationwide | No site visits required

Existing Property (Before)
What Our Clients Said
The existing property included a poorly utilised garage, dated internal layout, and inefficient circulation spaces that no longer met modern living requirements. While the structure itself was sound, the internal arrangement restricted flexibility and wasted valuable floor area.
The client approached MyHomePlans with a clear and aspirational brief:
While structurally robust, the layout was no longer fit for contemporary family living.
The client approached MyHomePlans with a clear and practical brief:
Above all, the client wanted certainty — technically, visually, and financially.
Please reach us at online@myhomeplans.co.uk if you cannot find an answer to your question.
No. MyHomePlans operates 100% online.
We work from existing drawings, measurements, photos, and information you provide. This approach allows us to deliver professional planning and Building Regulations drawings nationwide without the cost and delays associated with site visits.
No Designer can guarantee planning approval, but all designs are prepared using a planning-led approach, aligned with national and local planning policy to significantly reduce risk.
Where planning is required, we design conservatively and professionally to maximise the chances of approval.
In some cases, garage conversions and internal alterations can be carried out under permitted development. However, this specific project required a full Householder Planning Application due to the nature and extent of the proposed works.
At MyHomePlans, we assess planning requirements at the feasibility stage and clearly advise whether:
Where planning permission is necessary, we prepare planning-led designs and council-ready drawings to maximise the likelihood of approval and minimise delays.
Yes. We can act as your planning agent, preparing and submitting the application on your behalf and responding to council queries (optional add-on service).
Building Regulations drawings are optional and can be provided as part of a full package or as a standalone service, depending on your needs.
We can:
Our Building Regulations drawings are suitable for Building Control approval and construction use, and are coordinated to support a smooth build process.
We’ll advise you at the outset on the most appropriate option for your project.
Structural calculations are not included by default, but we can arrange these through a trusted partner engineer if required. All structural elements are clearly coordinated on our drawings.
Yes. All drawings are builder-friendly, technically detailed, and coordinated to avoid confusion on site.
They are suitable for pricing, construction, and Building Control inspections.
Yes. MyHomePlans provides nationwide and international online architectural services. Location does not affect the quality or scope of our work.
Typical timescales:
Yes. Reasonable design development is included.
Minor post-approval amendments can also be accommodated for a small additional fee if required.
We usually require:
We’ll guide you through this step-by-step.
Yes. By working fully online, we remove unnecessary overheads, allowing us to offer fixed, transparent pricing without compromising quality or compliance.
Simply contact us to confirm the package, and we’ll issue:
📞 07835 743338 📧 online@myhomeplans.co.uk
Early feasibility review identified several common challenges associated with garage conversions and internal restructuring.
Every issue was resolved before design sign-off, reducing risk during construction and ensuring smooth approvals.
MyHomePlans proposed a clean, efficient internal transformation, unlocking previously unused space while maintaining the character of the property.
The approach was intentionally practical and cost-efficient, maximising value without unnecessary complexity.
Once the design was approved, MyHomePlans produced a complete professional drawing package, including:
This ensured a smooth transition from design → approval → construction, without



.jpg/:/rs=w:370,cg:true,m)





MyHomePlans is a professional online home design service, providing architectural design drawings, planning drawings, permitted development assessments, Lawful Development Certificate drawings, and building regulations packages — delivered 100% remotely.
Website Disclaimer: Information provided on this website is for general guidance only and does not constitute legal or planning advice. Planning policy, permitted development rights, and building regulations may vary by location and are subject to change. Clients are encouraged to seek confirmation from relevant authorities where required.
© MyHomePlans. All rights reserved.
Upload your details below and we’ll prepare a fixed-fee quote for your architectural drawings.
100% online • No site visits • Fast turnaround • Worldwide service.